Makléř: Bc. Eisenreich Daniel
Telefon: 724 304 ...
E-mail: deisenr ...
Zobrazit celý kontaktTelefon: 724 304 349, 724 304 349
E-mail: deisenreich@eisen-reality.cz
Nemovitost nabízí
Mgr. Jan Vodenka
Prokopova 3, 13000 Praha 4
Zobrazit kontakt na RK602 441 993
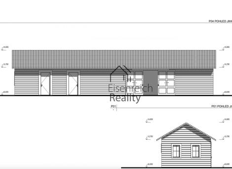
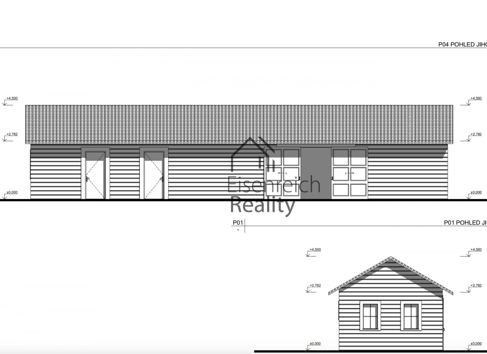
Prodej pozemku 6.364 m Hradec Králové, Třebeš Nabízíme k prodeji prostorný pozemek o celkové výměře 6.364 m v klidné části Hradce Králové Třebeš, v blízkosti slepého ramene řeky. Místo poskytuje výjimečné soukromí, přírodní prostředí a přitom rychlou dostupnost do centra města. Součástí je stavební povolení a projektová dokumentace na výstavbu rekreačního nebo hospodářského objektu (např. zázemí pro koně, sklady, dílnu, drobnou farmu). Stavět lze na ploše 2.130 m, zbytek pozemku nabízí prostor pro zahradu, výběhy, sady či další využití dle vašeho záměru. Inženýrské sítě a vybavení: elektřina na hranici pozemku (ve sloupku), schválená studna, jímka. Lokalita je ideální pro ty, kdo hledají kombinaci klidného venkova a městské dostupnosti příroda na dosah, centrum Hradce Králové jen pár minut jízdy. Pro více informací kontaktujte realitního makléře. <a href="https://www.eurobydleni.cz/rekreacni-objekty/chaty/kladno/obec-unhost/prodej/"><strong>Prodej chaty Unhošť</strong></a>

Prodej úchvatného pozemku určeného k výstavbě RD na Novém Hradci Králové, ulice Zámeček
Dovolujeme si Vám představit prodej lukrativního stavebního pozemku o celkové výměře 2.195 m2 ve velmi žádané lokalitě v Hradci Králové, ulice…

Prodej, Pozemek pro stavbu RD, bytů, Hradec Králové
Nabízíme Vám k prodeji krásný stavební pozemek přímo v HRADCI KRÁLOVÉ - katastrálním území Plácky o celkové ploše 1811 m2. Jedná se o velmi klidnou…
Prodej stavebního pozemku Hradec Králové na Eurobydleni.cz